Flipping Formal For Family

fresh transitional kitchen remodel

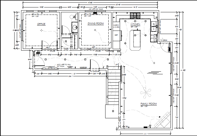
Floor Plans

Photos Before Remodel

 
 
 

About This Kitchen Remodeling Project

Publication:

  • Portland Remodel (front cover)

Scope:

  • Existing footprint – kitchen, dining room, family room, entry

Problems: 

  • Kitchen: The u-shaped kitchen had an island that was shoe horned in a cramped U-shaped kitchen, highly problematic for this family of four. 

  • Dining: This small token formal space was a bad fit for furniture, bodies and lifestyle. 

Solutions: 

  • Combine 2 spaces that didn’t work into 1 great working family-friendly space, within
      the existing house footprint.

  • A “soft space” nook was created, another expandable table area, large island and a
      beverage center for kids, grown-ups, everyday and when entertaining.

Personality/Style: 

  • Fresh, transitional

    TESTIMONIAL

    "We’ve hired Rhonda for three separate projects over a five-year span, two of which were quite complicated and major. I found Rhonda to be creative, a designer who thinks way outside the box and yet highly sensitive to working within a budget. One of our projects was a complete kitchen reconfiguration and redesign, which was completed years ago and, while very “artsy,” is still fresh and beautiful after 10 years of use. People who come to my house for the first time still ask if it was just done…you’ve got to love something so timeless. I highly recommend Rhonda. She is professional, passionate and knows her stuff!”

    Bill & Karlin C. - Portland, Or. (kitchen, bath/laundry, dining room addition, deck, fireplace)

Photography: Shannon Butler

Return to Portfolio